方案展示
設計說明
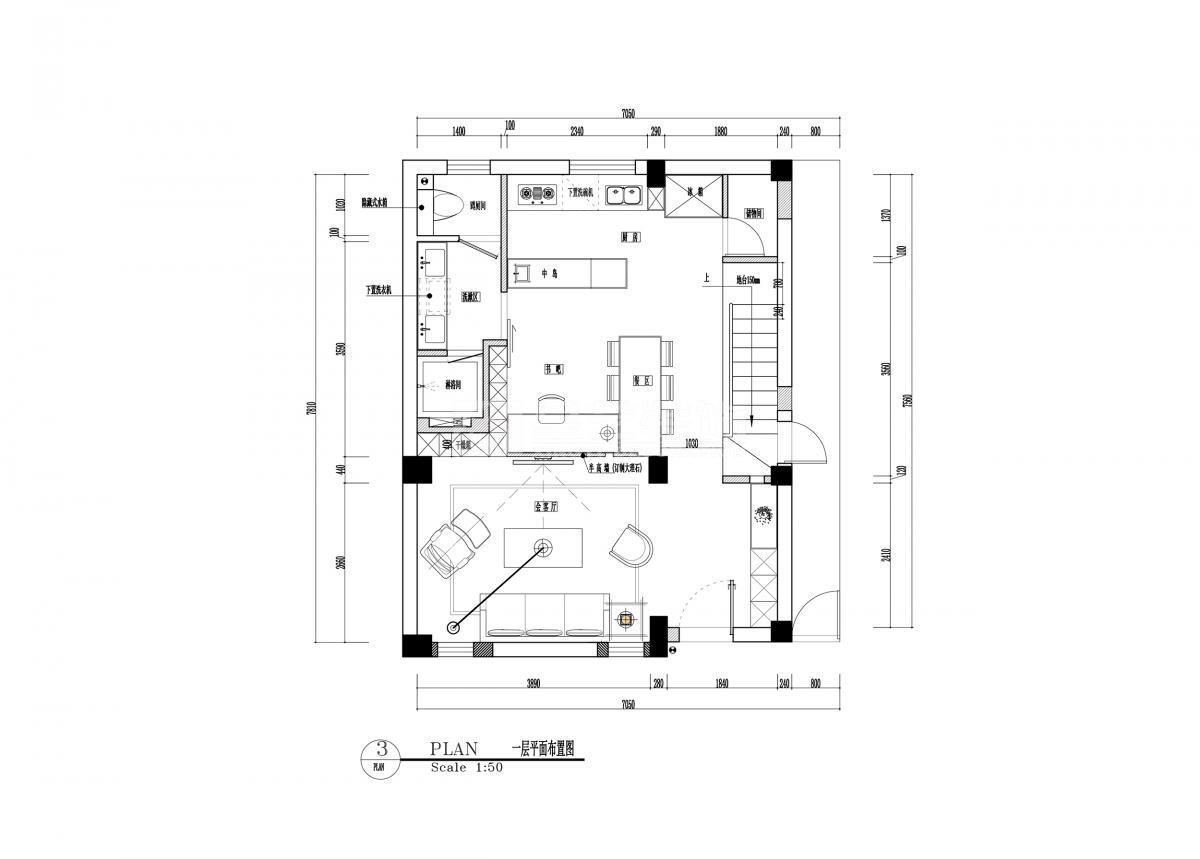
本案是一個4口之家,有兩個小朋友,對于他們,我覺得構成家的最重要元素應該是陽光,放松,互動與儲物, 給男主人一個放松冥想,充電的空間 給女主人一個功能,儲物,舒適的家 給小朋友一個學習,睡眠,游戲的樂園。 通過對原有戶型的分析,我把一層的所有間隔墻體都打掉,將餐廚庭一體化增加空間的對流與采光,也同時增加了不同功能區(qū)的聯(lián)系與互動。 把動區(qū)放在一樓,二樓主要作為睡臥區(qū),中空位的保留,樓梯造景與二樓的落地窗,讓兩層空間有個很好的鏈接 材質上采用灰色的水磨石,橡木飾面,以白色和木色為主色調打造一個放松,慵懶舒適的家
[展開]-
星藝設計師的其它設計案例
-
北歐風格的其它設計案例
關注我們
分享到
微信

立即預約
在線咨詢
在線客服
公安部備案號 44010602004978號