方案展示
設計說明
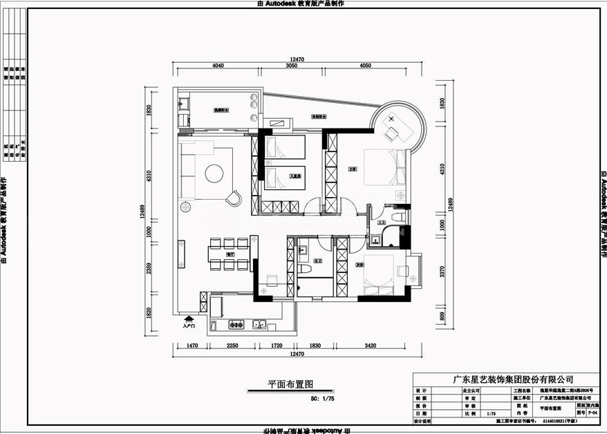
現代風格以簡潔,大塊面,結構美等元素,本案借鑒了近年比較流行水泥灰,色調以黑白灰為主,添了一些淺原木色,空間結構上天花梁和承重墻之間進行了穿插與延伸,電視柜整體化的設計,電視與柜體融于一體,餐廳與書房之間的矮柜讓人感覺是墻的延伸柜,既可以隔斷空間又使得空間之間有聯系,使得空間統一富有變化。 燈光上以筒燈,燈帶為主,天花以暗藏筒燈為主,燈帶,客廳燈帶與餐廳燈帶的延續與斷開,會讓空間在整體與細節有關聯有脫離,空間的燈帶使得立面與天花的斷離與連接更加富有細節感。
[展開]-
星藝設計師的其它設計案例
-
現代風格的其它設計案例
關注我們
分享到
微信

立即預約
在線咨詢
在線客服
公安部備案號 44010602004978號